Bản Vẽ Xin Phép Xây Dựng Gồm Những Gì?
Chào Bạn!
Thật ra, chủ nhà vẫn biết và hiểu bản vẽ xin phép xây dựng gồm những gì? Nhưng một điều cần quan tâm nhất là cách bố trí và thủ tục hành chính theo đúng quy định của mỗi quận tại TP Hồ Chí Minh. Nhiều trường hợp gia chủ ái ngại về quá trình ký túc quá nhiều làm hồ sơ bị giam, dẫn đến thời gian hoàn thành giấy phép chậm. Nhưng các gia chủ cứ yên tâm, một bản vẽ xin phép cũng không quá phức tạp, chỉ cần thể hiện đầy đủ theo yêu cầu của các quận là được.
Bản vẽ thiết kế xin phép xây dựng: đây là bước đầu tiên, có nghĩa là chủ nhà phải lên ý tưởng và xác định nhu cầu ngôi nhà mình trước. Sau đó tìm gặp một công ty dịch vụ về xin phép xây dựng để nhờ họ tư vấn về cách bố trí cho phù hợp với quy định của quận về mật độ và cách tối đa diện tích, bố trí tổng thể kết cấu hài hòa nhất.
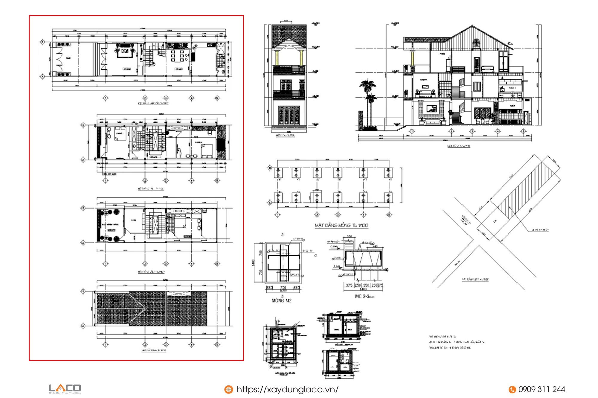
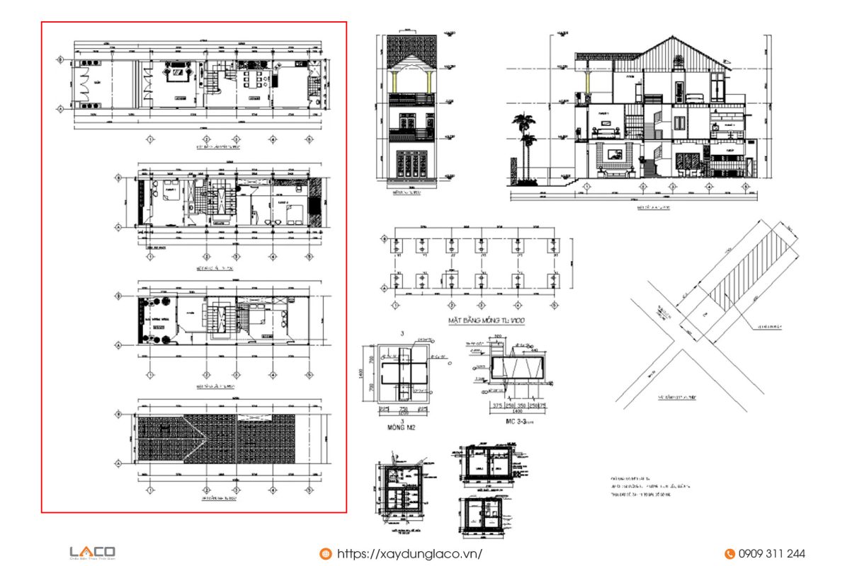
Và phải có sự thống nhất và làm việc của hai bên công ty và chủ nhà để hoàn thành công việc được suôn sẻ. Có những trường hợp khách khàng đã lên phác thảo cách bố trí xây dựng sẵn như hình dưới:
Lập bản vẽ xin giấy phép xây dựng: để thể hiện toàn bộ các mặt bằng của ngôi nhà sắp xây. Nội dung bản vẽ xin phép xây dựng bao gồm những phần quan trọng sau:
+ Mặt bằng: gồm mặt bằng tổng thể và mặt bằng sơ bộ của diện tích bạn muốn xây dựng
– Mặt bằng tổng thể: thể hiện diện tích xây dựng so với diện tích đất. Để biết diện tích xây dựng, bạn phải kiểm tra mật độ xây dựng theo quy định mà quận yêu cầu nhé
– Mặt bằng sơ bộ: bao gồm đầy đủ từ tầng trệt, lửng, tới các lầu, mái mà bạn muốn xây dựng

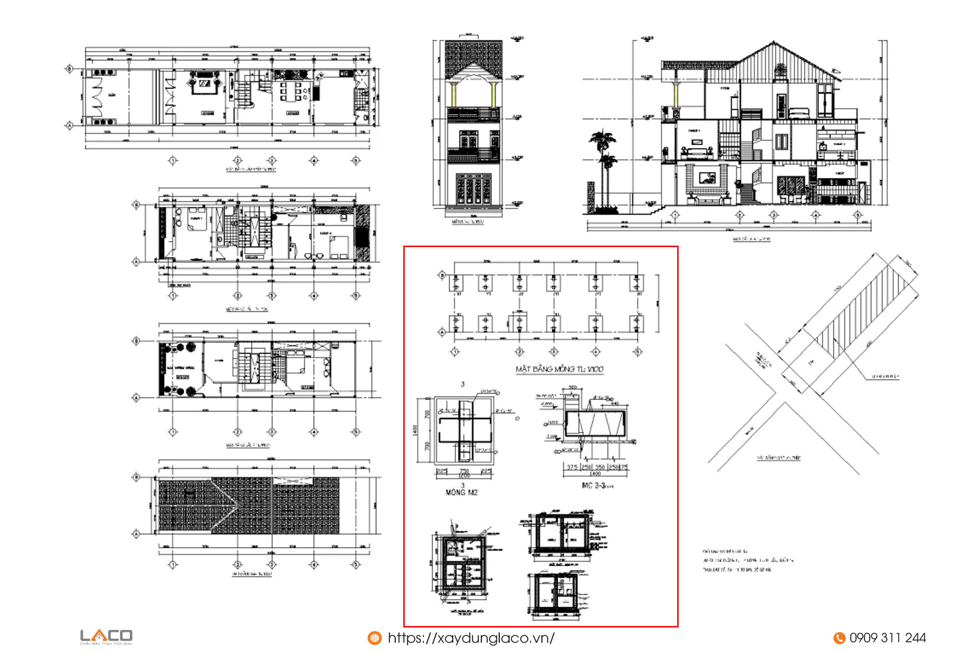
+ Mặt cắt: bao gồm mặt cắt AA của ngôi nhà cũng như phần móng và phần hầm tự hoại

+ Mặt đứng: thể hiện mặt tiền ngôi nhà từ hình dạng và kích thước kể cả phần mái, bên cạnh đó cũng thể hiện rõ chiều cao tầng của ngôi nhà

Tất cả những hình vẽ này phải thể hiện kích thước đầy đủ. Để chủ nhà có thể hình dung sơ khởi cho ngôi nhà của mình
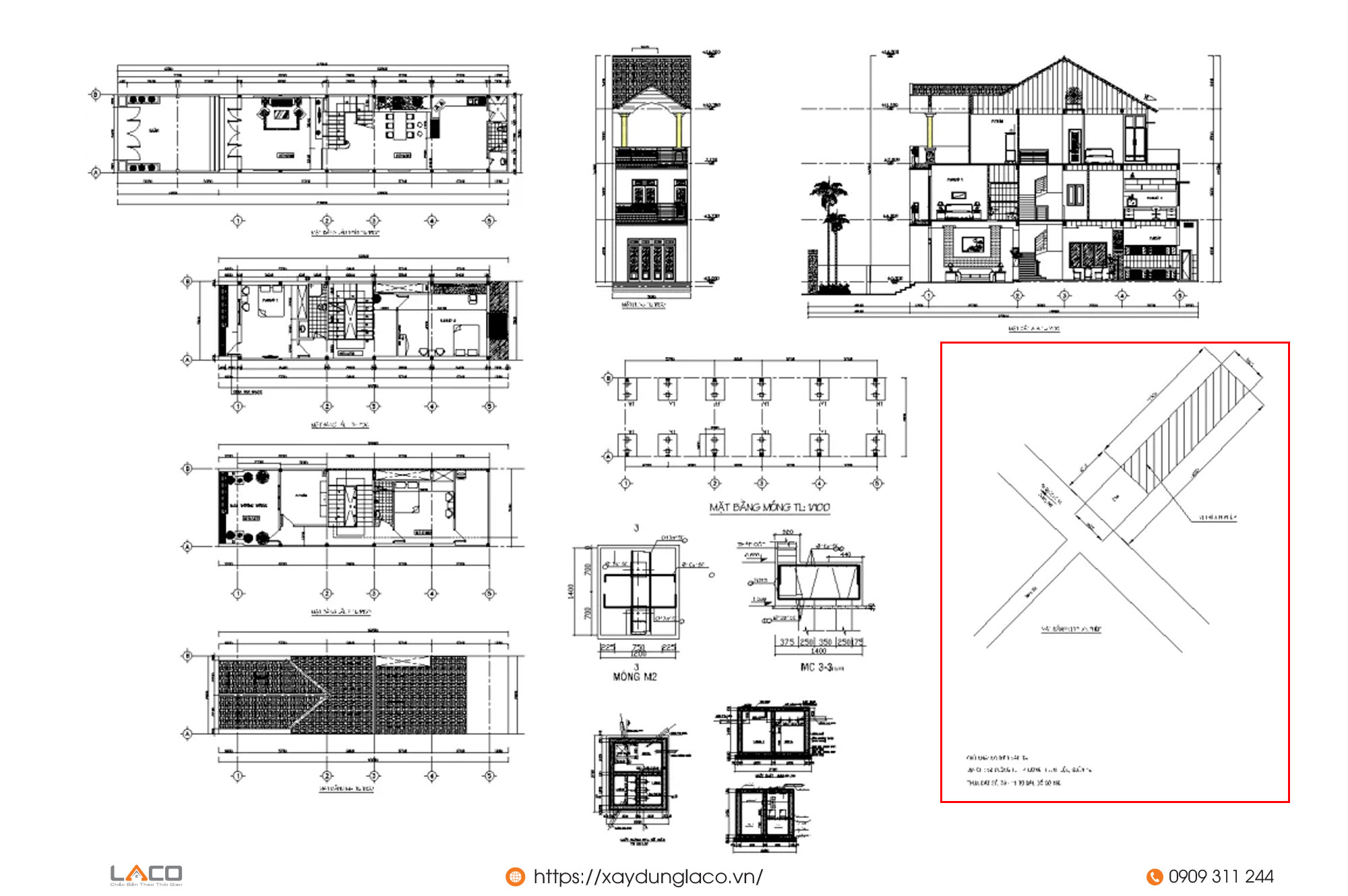
+ Bản đồ họa độ vị trí: thể hiện vị trí tọa độ của khu đất cũng như liền kề những khu đất xung quanh. Yêu cầu phần này phải đúng với giấy chứng nhận quyền sử dụng đất. Trường hợp sổ cũ không có tọa độ thì bạn phải làm thêm bản đồ hiện trạng cho khu đất của mình

+ Khung tên bản vẽ xin phép xây dựng: thể hiện gồm 3 phần quan trọng
– Tên công ty có chức năng xin phép: ở đây phải thể hiện tên công ty, địa chỉ, mã số thuế, và số điện thoại của chủ doanh nghiệp
– Kiến trúc sư thiết kế: ký và ghi rõ họ tên của kiến trúc sư thiết kế của công ty, người đảm nhiệm thiết kế cho đúng nhu cầu của bạn và quy định của quận
– Phần chủ nhà: ký và ghi rõ họ tên của chủ nhà đúng với trên giấy chứng nhận quyền sở hữu đất. Trường hợp cả hai vợ chồng đứng trên giấy chứng nhận thì trong khung tên phải có chữ ký của 2 vợ chồng

+ Phần quan trọng là bạn phải dành 1 khoảng trống để quận phê duyệt, ký tên và đóng dấu cho bản vẽ của bạn
Mẫu bản vẽ xin cấp phép xây dựng: Dưới đây là một bản vẽ mẫu đã được phê duyệt của quận

Quy định về bản vẽ xin phép xây dựng của quận: phù hợp với quy hoạch xây dựng được duyệt và chịu trách nhiệm trước pháp luật về chất lượng thiết kế, tác động của công trình đến môi trường và an toàn của các công trình lân cận
- Mật độ xây dựng: Trong bản vẽ xin phép cũng phải thể hiện diện tích của miếng đất và diện tích của phần mà bạn muốn xây dựng. Bảng mật độ xây dựng này được Nhà nước ban hành và bắt buộc phải tuân thủ theo
- Quy mô xây dựng: Đây cũng là những quy định của nhà nước, về số tầng tối đa trong khu đô thị+1: ý nghĩa sẽ được thêm 1 tầng so với số tầng cơ bản. Số tầng sẽ phụ thuộc vào lộ giới và khu vực ở trung tâm hay ngoại ô/ các khu vực riêng do UBND quy định
- Chiều cao tầng: tùy vào lộ giới đường sẽ quyết định đến chiều cao tầng từ ‘Cao độ tối đa từ nền vỉa hè đến sàn lầu 1′ cũng như các tầng
Ví dụ: Lộ giới đường 3,5 ≤ L < 7, thì ‘Cao độ tối đa từ nền vỉa hè đến sàn lầu 1’ sẽ là 5.8 m, ‘Cao độ tối đa từ nền vỉa hè đến sàn tầng 3’ là 13.6 m
- Khổ giấy bản vẽ xin phép xây dựng: không quy định về khổ giấy miễn là bản vẽ thể hiện toàn bộ theo quy định của nhà nước
- Quy định việc mở ban công, cửa sổ, lỗ thông hơi trong sang nhà kế cận và xây dựng trong các khu nhà liền kề cũng phải thể hiện trong bản vẽ
+ Từ tầng hai (lầu 1) trở lên, trên các bức tường cách ranh giới đất với công trình bên cạnh dưới 2 m, không được mở cửa đi, cửa sổ; mép ngoài của ban công trong sang nhà hàng xóm phải cách ranh giới đất giữa 2 nhà ít nhất là 2 m.
+ Khi chủ công trình có nhu cầu mở ban công, cửa sổ, lỗ thông hơi trên các bức tường cách ranh đất nhỏ hơn 2 m thì trong hồ sơ phải có thêm văn bản thỏa thuận với hộ liền kề được chứng thực của UBND xã, phường.
+ Vị trí mở cửa cần tránh tia nhìn trực tiếp vào nội thất nhà bên cạnh. Khi thỏa thuận bị hủy bỏ thì việc bít ban công, cửa sổ, lỗ thông hơi là mặc nhiên không phải xét xử.
Trên đây là một số hình ảnh và chú thích về bản vẽ khi bạn chuẩn bị xin phép xây dựng. Những chia sẻ trên sẽ giúp bạn ít nhiều hiểu thêm về một bản vẽ chi tiết như thế nào và bố trí thiết kế ra sao?

