Trong lĩnh vực xây dựng, bản vẽ là công cụ truyền đạt thông tin kỹ thuật giữa các bên tham gia dự án – từ thiết kế, thi công đến quản lý công trình. Trong đó, mặt bằng tổng thể và mặt bằng định vị là hai loại bản vẽ nền tảng, giúp xác định chính xác vị trí công trình, đảm bảo công năng, thẩm mỹ và đúng quy chuẩn xây dựng.
Bài viết này sẽ phân tích chi tiết về nội dung, cách bố trí mặt bằng tổng thể và mặt bằng định vị, đồng thời chỉ ra tác dụng thực tế của từng thành phần và hệ quả nếu sai sót.
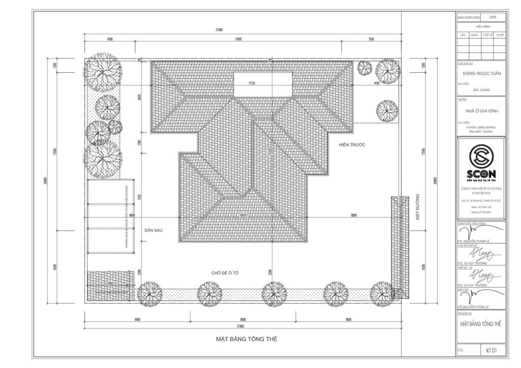
2. Mặt bằng tổng thể là gì?
2.1. Định nghĩa
Mặt bằng tổng thể là bản vẽ thể hiện toàn bộ quy hoạch không gian bên ngoài công trình trên nền khu đất – bao gồm công trình chính, công trình phụ, cảnh quan, hạ tầng kỹ thuật và các mốc ranh giới.
Bản vẽ này giúp chủ đầu tư hình dung tổng thể không gian sử dụng, đồng thời là căn cứ để quản lý quy hoạch và triển khai các hạng mục hạ tầng.

2.2. Nội dung chính cần có trong mặt bằng tổng thể – Chi tiết và tác dụng từng thành phần
– Vị trí công trình chính trên khu đất
- Tác dụng: Là trung tâm của tổ chức không gian; từ đây kiến trúc sư bố trí công trình phụ trợ, giao thông, cảnh quan hợp lý.
- Nếu sai hoặc không có: Công trình có thể xây lệch về phía sát ranh, gây mất cân đối hoặc vi phạm chỉ giới, ảnh hưởng kết cấu hạ tầng và thẩm mỹ tổng thể.
– Các công trình phụ trợ (nhà xe, nhà bảo vệ, sân vườn…)
- Tác dụng: Phục vụ nhu cầu sử dụng hàng ngày; tăng tiện nghi, hỗ trợ vận hành công trình chính.
- Nếu sai hoặc thiếu: Có thể gây bất tiện nghiêm trọng trong khai thác sử dụng (ví dụ thiếu nhà xe, bố trí nhà bảo vệ che khuất lối ra vào…).
– Mốc ranh giới lô đất
- Tác dụng: Xác định phạm vi hợp pháp để xây dựng; căn cứ để không vi phạm đất công, đất lân cận.
- Nếu không chính xác: Rất dễ bị tranh chấp đất, lấn ranh hàng xóm, hoặc vi phạm đất hành lang bảo vệ giao thông – có thể bị xử phạt hành chính hoặc buộc tháo dỡ.
– Chỉ giới xây dựng và chỉ giới đường đỏ
- Tác dụng: Giới hạn phần diện tích được phép xây dựng, đảm bảo công trình không ảnh hưởng lộ giới, hành lang an toàn giao thông, PCCC…
- Nếu thiếu hoặc sai: Công trình có thể bị xây vượt chỉ giới, dẫn tới vi phạm nghiêm trọng quy hoạch – có thể không được cấp sổ hoàn công, buộc tháo dỡ phần sai phạm.
– Các yếu tố hạ tầng kỹ thuật (cấp điện, nước, thoát nước, cây xanh…)
- Tác dụng: Giúp bố trí chính xác hệ thống kỹ thuật phục vụ công trình: từ đấu nối cấp nước – thoát nước – điện – viễn thông.
- Nếu bố trí sai: Dễ xảy ra xung đột kỹ thuật (ví dụ thoát nước chồng với tuyến điện ngầm), rò rỉ, ngập úng, khó bảo trì về sau.
– Hướng gió, hướng nắng
- Tác dụng: Tối ưu thiết kế vi khí hậu – bố trí mở cửa, tường chắn nắng, giếng trời sao cho mát vào mùa hè, tránh gió lạnh mùa đông.
- Nếu không xét tới: Nhà dễ bị nắng gắt, bí khí, chi phí điện năng cao, sức khỏe người sử dụng bị ảnh hưởng.
– Cốt cao độ chuẩn
- Tác dụng: Là cơ sở tính toán chiều sâu móng, nền công trình, độ dốc thoát nước và liên kết hạ tầng đô thị.
- Nếu sai: Công trình có thể bị ngập nước, thoát nước ngược, hoặc sai cao độ so với đường hiện hữu, phải nâng nền tốn chi phí lớn.
2.3. Cách bố trí mặt bằng tổng thể
• Nguyên tắc chung
- Hướng Bắc nên đặt lên trên (hoặc có mũi tên chỉ hướng).
- Tỷ lệ bản vẽ thường dùng: 1/500 hoặc 1/200.
- Thể hiện đầy đủ chú thích, ký hiệu, lưới trục nếu cần.
• Trình tự bố trí
- Vẽ ranh giới khu đất và cốt nền tổng thể.
- Đặt vị trí công trình chính theo yêu cầu thiết kế.
- Bố trí các công trình phụ trợ, cây xanh, sân vườn.
- Thêm hệ thống đường nội bộ, cấp điện, nước, thoát nước.
- Ghi rõ chỉ giới, cốt cao độ và hướng gió/nắng.
• Một số lưu ý
- Ký hiệu thống nhất, dễ đọc.
- Không chồng lắp chữ, nét vẽ rõ ràng.
- Ghi chú đầy đủ diện tích, kích thước, cao độ.
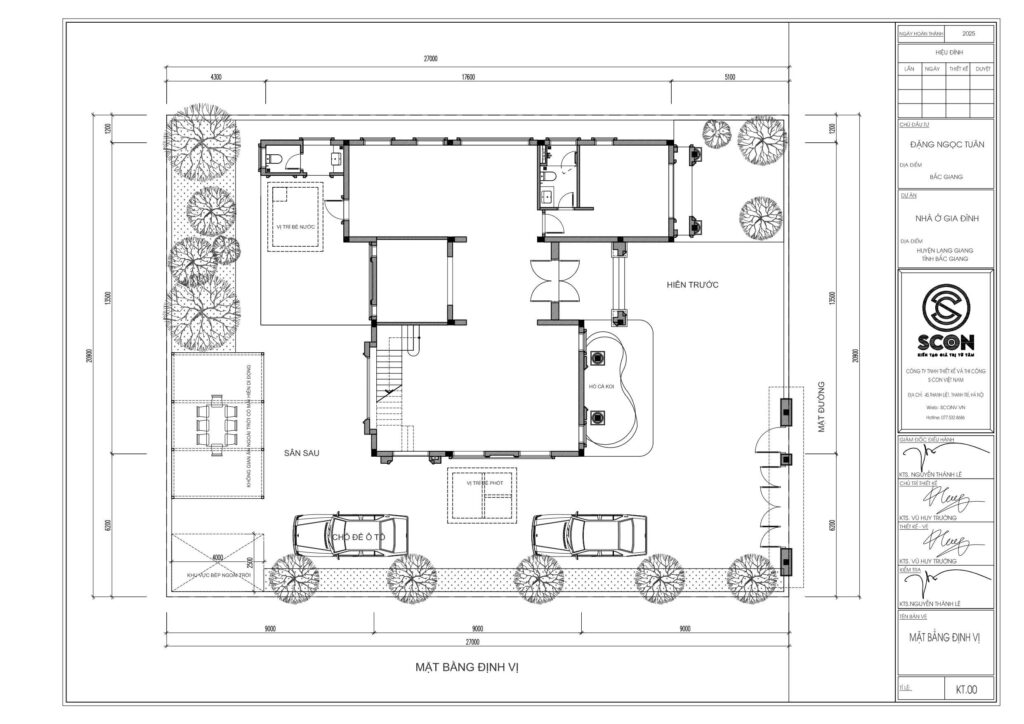
2. Mặt bằng định vị là gì?
2.1. Định nghĩa
Mặt bằng định vị là bản vẽ xác định chính xác vị trí công trình so với mốc định vị thực địa hoặc mốc tọa độ quốc gia. Đây là bản vẽ phục vụ thi công trực tiếp, đặc biệt quan trọng trong giai đoạn đặt móng, bố trí trục cột, và thi công kết cấu.

2.2. Nội dung chính cần có trong mặt bằng tổng thể – Chi tiết và tác dụng từng thành phần
– Tọa độ các điểm góc công trình
- Tác dụng: Là cơ sở định vị tuyệt đối để bố trí công trình đúng trên thực địa – phù hợp bản vẽ thiết kế.
- Nếu thiếu hoặc sai: Gây ra lệch trục toàn bộ công trình, ảnh hưởng nghiêm trọng đến kết cấu, dây chuyền thi công và pháp lý nghiệm thu.
– Liên hệ với mốc tọa độ quốc gia hoặc mốc chuẩn tại khu đất
- Tác dụng: Giúp kết nối hệ tọa độ bản vẽ với hệ thực địa, phục vụ định vị GPS hoặc lưới trắc địa công trình.
- Nếu bỏ qua: Công trình có thể sai lệch hệ quy chiếu, gây khó khăn trong kiểm tra và nghiệm thu sau này.
– Khoảng cách tới các ranh giới xung quanh
- Tác dụng: Kiểm soát an toàn xây dựng và tuân thủ pháp lý (ví dụ: cách tường rào 1m, cách nhà bên cạnh 3m…).
- Nếu không đủ khoảng cách: Dễ gây xung đột với công trình bên cạnh, hoặc không đáp ứng quy chuẩn PCCC và giám sát đô thị sẽ không chấp thuận.
– Cao độ từng điểm
- Tác dụng: Làm cơ sở thi công nền, móng, dầm móng, thoát nước chính xác.
- Nếu sai cao độ: Công trình có thể bị ngập úng, sụt móng hoặc sai khớp kết cấu với phần khác của dự án.
– Lưới trục định vị (A-B, 1-2…)
- Tác dụng: Dùng để thi công cột, dầm, tường, cầu thang… đúng vị trí trong suốt giai đoạn xây dựng.
- Nếu sai lưới trục: Kết cấu bị lệch, méo, sai kích thước, gây khó khăn nghiệm thu, hoặc không khớp với hệ kết cấu trên/dưới.
2.3. Cách bố trí mặt bằng định vị
– Nguyên tắc chung
- Tỷ lệ bản vẽ thường: 1/200 hoặc 1/100.
- Có đầy đủ hệ trục định vị, mốc chuẩn và tọa độ từng điểm.
- Ghi rõ hướng Bắc, tên bản vẽ, ngày tháng thực hiện.
– Trình tự bố trí
- Vẽ lưới trục định vị (A-B, 1-2).
- Đặt tọa độ từng điểm góc công trình.
- Ghi chú khoảng cách đến các mốc ranh giới.
- Ghi cao độ ±0.000 và các điểm đặc biệt.
– Một số lưu ý
- Không được sai sót số liệu, tọa độ phải kiểm chứng.
- Nên phối hợp với đội khảo sát để kiểm tra ngoài thực địa.
- Tên trục và kích thước phải trùng khớp với bản vẽ kết cấu.
3. So sánh mặt bằng tổng thể và mặt bằng định vị
Tiêu chí Mặt bằng tổng thể Mặt bằng định vị Mục đích Quy hoạch tổng thể không gian, hạ tầng Định vị thi công chính xác ngoài thực địa Phạm vi thể hiện Toàn bộ khu đất, cảnh quan, phụ trợ Công trình chính, trục và mốc định vị Đối tượng sử dụng Kiến trúc sư, chủ đầu tư, cơ quan quy hoạch Kỹ sư thi công, đội khảo sát địa hình Tính chi tiết Tổng quát, phục vụ quy hoạch Chính xác từng mm, phục vụ thi công
4. Kết luận
Trong mọi dự án xây dựng – từ nhà dân đến công trình công nghiệp, việc xây dựng một bản vẽ mặt bằng tổng thể và mặt bằng định vị chính xác là tiền đề để thi công thuận lợi, đúng pháp lý và tối ưu chi phí.
Mặt bằng tổng thể giúp tổ chức không gian và hạ tầng hợp lý, còn mặt bằng định vị là công cụ đảm bảo thi công đúng vị trí thiết kế.
👉 Liên hệ ngay với đơn vị thiết kế – thi công chuyên nghiệp để được tư vấn, triển khai bản vẽ mặt bằng chuẩn xác, đồng bộ và tối ưu nhất cho dự án của bạn!
SCON VIỆT NAM – CÔNG TY THIẾT KẾ,THI CÔNG TRỌN GÓI BIỆT THỰ, NHÀ PHỐ, KHÁC SẠN
Liên hệ tư vấn:
Hotline/zalo: 097.169.3339
Website: https://scon.vn/
Email: [email protected]
Trụ sở: Tòa LK5.18, ngõ 49A, đường Thanh Liệt, Thanh Liệt, Thanh Trì, Hà Nội
