Khi nhìn vào một tòa nhà, bạn có bao giờ tự hỏi điều gì làm nên vẻ ngoài thu hút của nó? Đó chính là mặt đứng. Vậy mặt đứng là gì? Tại sao yếu tố này lại quan trọng đến vậy? Trong bài viết này, Vạn An Group sẽ cùng bạn đọc tìm hiểu về khái niệm, các yếu tố cấu thành và các loại mặt đứng được thể hiện trong bản vẽ kiến trúc bao gồm những gì?

Mặt đứng là gì?
Mặt đứng trong tiếng anh là Vertical Surface. Đây là thuật ngữ trong kiến trúc và xây dựng dùng để chỉ một trong các hình chiếu của công trình, thể hiện bề ngoài của công trình từ một hướng cụ thể (thường là từ mặt tiền hoặc các mặt bên). Mặt đứng giúp mô tả các yếu tố bên ngoài của công trình như cửa sổ, cửa ra vào, mái, vật liệu sử dụng, chi tiết trang trí và các yếu tố khác.
Mặt đứng có vai trò quan trọng trong việc thể hiện thẩm mỹ của công trình, tạo nên hình ảnh và phong cách kiến trúc. Ngoài ra, mặt đứng còn liên quan đến các yếu tố như ánh sáng, thông gió, cũng như khả năng chống chịu của công trình với điều kiện thời tiết và tác động bên ngoài.
Mặt đứng bản vẽ nhà có ý nghĩa gì?
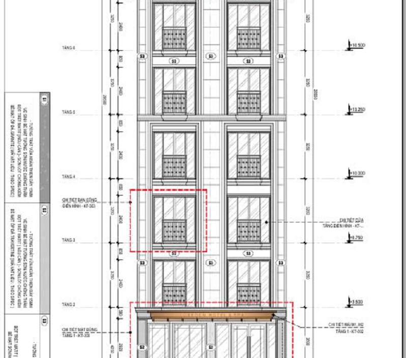
Mặt đứng bản vẽ nhà là một phần quan trọng trong bộ hồ sơ thiết kế kỹ thuật xây dựng, Chúng thể hiện hình dạng bên ngoài công trình, xác định kích thước và tỷ lệ. Là cơ sở để đội ngũ thi công thực hiện xây dựng các hạng mục sao cho đạt được yếu tố thẩm mỹ cao nhất. Đây là tài liệu quan trọng để triển khai thi công và kiểm soát chất lượng công trình xây dựng.
Các yếu tố cấu thành mặt đứng công trình
Các yếu tố cấu thành mặt đứng công trình bao gồm:
- Vật liệu xây dựng: Vật liệu sử dụng cho mặt đứng có thể là gạch, bê tông, kính, thép, gỗ, đá, hay các vật liệu tổng hợp. Những vật liệu này có ảnh hưởng tới thẩm mỹ và khả năng chống chịu của công trình.
- Cửa sổ và cửa ra vào: Cửa sổ và cửa ra vào là những yếu tố quan trọng trong mặt đứng. Chúng có ảnh hưởng lớn đến vẻ ngoài của công trình.
- Chi tiết trang trí: Các chi tiết trang trí như phào chỉ, họa tiết, hoặc các yếu tố nghệ thuật khác giúp tạo điểm nhấn và làm cho mặt đứng trở nên đặc biệt.
- Mái nhà: Mái nhà bao gồm mái dốc, mái phẳng, mái vòm, hoặc mái kính tùy thuộc vào thiết kế. Có ảnh hưởng đến kiến trúc tổng thể của công trình.
- Tường và vách ngăn: 2 yếu tố này có thể tạo ra các không gian chức năng hoặc thẩm mỹ đặc biệt cho công trình.
- Lan can, ban công: Lan can và ban công là những yếu tố ngoại thất thể hiện tính thẩm mỹ và chức năng, đặc biệt đối với các công trình cao tầng.
- Màu sắc: Màu sắc cần phù hợp với môi trường xung quanh và phù hợp với mục đích sử dụng của công trình. Điều này sẽ ảnh hưởng đến sự hài hòa và phong cách của công trình
- Hệ thống chiếu sáng: Hệ thống chiếu sáng mặt đứng giúp tạo điểm nhấn và làm nổi bật các đặc điểm kiến trúc vào ban đêm. Yếu tố này có thể lắp đặt ở vị trí ở cửa ra vào, cửa sổ.

Các loại mặt đứng trong bản vẽ kiến trúc
Dưới đây là các loại mặt đứng được thể hiện trong bản vẽ kiến trúc:
Mặt đứng chính
Đây là mặt đứng thể hiện hình ảnh của công trình từ phía chính diện, thường là hướng mặt tiền hoặc hướng có cổng ra vào. Mặt đứng chính sẽ mô tả tổng thể kiến trúc của công trình và các yếu tố ngoại thất như cửa sổ, cửa ra vào, mái, vật liệu sử dụng, và chi tiết trang trí.

Mặt đứng bên
Mặt đứng bên mô tả một trong hai bên của công trình (bên trái hoặc bên phải). Loại mặt đứng này giúp thể hiện các yếu tố kiến trúc khác không thể nhìn thấy từ mặt đứng chính, như chiều cao của các tầng, các cửa sổ phụ, và cấu trúc của các bức tường bên.

Mặt đứng nội thất
Đây là mặt đứng thể hiện các bức tường bên trong của công trình, giúp mô tả chi tiết các yếu tố như cửa, cửa sổ, đồ nội thất, kệ, vách ngăn, và các chi tiết trang trí. Mặt đứng nội thất thường được sử dụng để thể hiện không gian bên trong các căn phòng hoặc các khu vực đặc biệt trong công trình.

Mặt đứng kết cấu
Mặt đứng kết cấu tập trung vào các yếu tố cấu trúc của công trình như cột, dầm, kết cấu chịu lực, vật liệu xây dựng, và chi tiết kết cấu đặc biệt. Loại mặt đứng này thường được sử dụng trong các bản vẽ kỹ thuật để xác định và mô tả các yếu tố kết cấu chính của công trình.

Mặt đứng kỹ thuật
Mặt đứng kỹ thuật thường được sử dụng trong các bản vẽ chi tiết, thể hiện các yếu tố kỹ thuật và các hệ thống như hệ thống điện, hệ thống cấp thoát nước, điều hòa không khí, hoặc các thiết bị cơ điện khác. Đây là các mặt đứng chi tiết phục vụ cho việc thi công và lắp đặt.

Các yếu tố cần lưu ý khi thiết kế mặt đứng
Khi thiết kế mặt đứng, cần lưu ý một số yếu tố sau để đảm bảo tính thẩm mỹ, công năng, và sự bền vững của công trình:
- Tính thẩm mỹ: Nên thiết kế mặt đứng phù hợp với phong cách tổng thể của công trình, đảm bảo sự cân đối và chọn lọc các chi tiết trang trí phù hợp.
- Công năng sử dụng: Cần bố trí cửa sổ, cửa ra vào hợp lý, tận dụng tối đa tầm nhìn đẹp của công trình.
- Vật liệu sử dụng: Lựa chọn vật liệu chịu được điều kiện thời tiết. Ưu tiên các vật liệu dễ vệ sinh,màu sắc và kết cấu phù hợp với phong cách kiến trúc.
- Điều kiện khí hậu: Thiết kế phải đáp ứng khả năng chống nắng, mưa, gió mạnh hoặc nhiệt độ khắc nghiệt.
- Tiêu chuẩn kỹ thuật: Tuân thủ các quy định về chiều cao, khoảng cách, màu sắc hoặc vật liệu. Đảm bảo thiết kế an toàn vật liệu tốt.
Bằng cách lưu ý các yếu tố trên, thiết kế mặt đứng sẽ đảm bảo đáp ứng yêu cầu về thẩm mỹ, công năng, và độ bền vững, đồng thời tạo nên dấu ấn riêng cho công trình.
Một số mẫu mặt đứng sang trọng, ấn tượng
Dưới đây là một số mẫu thiết kế mặt đứng đẹp, sang trọng:




Thông qua bài viết này, chúng ta đã hiểu rõ thuật ngữ “mặt đứng là gì?“. Mặt đứng không chỉ là phần trình bày hình dáng bên ngoài của công trình, mà còn phản ánh tư duy thiết kế, tính thẩm mỹ và sự hài hòa với môi trường xung quanh. Vạn An Group hy vọng bài viết đã giúp bạn hiểu rõ hơn về mặt đứng và vai trò quan trọng của nó trong kiến trúc. Nếu bạn đọc có nhu cầu tìm kiếm đơn vị thiết kế thi công khách sạn chuyên nghiệp, hãy liên hệ với chúng tôi qua Hotline 0968 675 102 – 0985 385 102.
