Thượng tọa Thích Minh Hiền* Tham luận Hội thảo khoa học: Kiến trúc Phật giáo Việt Nam – thống nhất trong đa dạng, ngày 15/4/2023 tại hội trường Bảo tàng Lịch sử quốc gia (Hà Nội)
1. Kiến trúc mỹ thuật Phật giáo thế giới
Kiến trúc Mỹ thuật Phật giáo ra đời chính yếu nhằm đáp ứng nhu cầu tâm linh của con người như tín ngưỡng, nghi lễ và sự tôn sùng Tam bảo. Sau khi Đức Phật nhập Niết bàn thì sự sùng bái, lòng kính tín, tôn thờ của con người đối với Đức Phật ngày càng nhiều hơn. Do đó mà nền kiến trúc mỹ thuật Phật giáo đã phát triển mạnh mẽ, phong phú, đa dạng với nhiều màu nhiểu vẻ tại mỗi quốc gia, nhưng tổng quát gồm ba hệ thống chính là: Tiểu thừa, Đại thừa và Mật thừa.
1.1. Kiến trúc mỹ thuật Phật giáo Tiểu thừa
Nền kiến trúc mỹ thuật Phật giáo Tiểu thừa xuất hiện từ thế kỷ V trước công nguyên, khởi nguyên tại Ấn Độ và phát triển tại Srilanka, các quốc gia Đông Nam Á… Kiến trúc mỹ thuật Tiểu thừa đã hình thành dựa trên sự kính tín, tôn thờ những di vật, xá lợi của Đức Phật. Biểu hiện cụ thể là sự xây dựng Stupa[1] thờ những di vật, xá lợi của Đức Phật nằm ở trung tâm quần thể kiến trúc. Điêu khắc, hội họa Phật giáo cùng xuất hiện để trang trí cho các bộ phần kiến trúc ngay từ lúc khởi nguyên, lấy cố sự đồ[2] làm chủ đề. Sau này tạo tượng tròn thịnh hành, phong cách tạc tượng xuất hiện với những mô thức về 32 tướng tốt và 80 vẻ đẹp của đức Phật.
Ví dụ: Bảo tháp Stupa ở Sanchi và tháp Đại Giác ở Bodhgaya, Ấn Độ; đền Borobudur ở Indonesia đều có bố cục tháp nằm ở ngay trung tâm quần thể kiến trúc.
1.2. Kiến trúc mỹ thuật Phật giáo Đại thừa
Nền kiến trúc mỹ thuật Phật giáo Đại thừa xuất hiện vào khoảng thế kỷ đầu Công nguyên, bắt nguồn từ Ấn Độ truyền qua Trung Á truyền đến Trung Quốc, Nhật Bản, Việt Nam, Triều Tiên,… Kiến trúc mỹ thuật Đại thừa lấy chế tác tượng cùng với sự kính tín tôn thờ làm trung tâm. Phương pháp tạo hình, đa phần đều được lý tưởng hóa đức Phật, Bồ Tát, chư thần,… trong điêu khắc và hội họa. Đề tài kiến trúc mỹ thuật Đại thừa không những là Phật giáo cố sự mà còn phóng tác từ nội dung kinh điển[3]. Các họa phẩm được sử dụng làm đối tượng lễ bái (Tượng đơn, Tam tôn, Ngũ bách La Hán). Các công trình kiến trúc Đại thừa có thiết trí các bức bích họa trên tường, cánh cửa, cột trụ, thiên tỉnh…
Kiến trúc mỹ thuật Đại thừa phản ánh sự giao thoa giữa Phật giáo và văn hóa, tín ngưỡng bản địa của mỗi quốc gia, vùng miền và biểu hiện đặc trưng của từng tông phái Phật giáo khác nhau như: Tịnh Độ, Pháp Hoa, Thuyền Tông, Mật giáo, … phát triển vô cùng phong phú với nhiều phong cách kiến trúc mỹ thuật khác nhau. Ở mỗi quốc gia, kiến trúc mỹ thuật Đại thừa có nhiều điểm tương đồng với cung điện Hoàng triều và nhà ở dân gian.
Kiến trúc mỹ thuật Phật giáo Đại thừa ảnh hưởng mạnh mẽ từ Trung Quốc theo lối kiến trúc gian đơn tầng và lầu các đan xen, sử dụng phương thức tổ hợp quần thể với hình thức sân vườn đăng đối theo đường trục dọc. Quần thể kiến trúc Đại thừa gồm: Tam quan, Phật điện, Tháp, Giảng đường, Tăng phòng, Tác trù phòng (nhà bếp), Dục thất (nhà tắm), Tiện sở (xuất xử) và các công trình phụ trợ khác. Càng về sau thì Phật điện chiếm vị trí chủ đạo hơn Tháp để đáp ứng nhu cầu thực tiễn. Pháp cụ trong kiến trúc mỹ thuật Đại thừa xuất hiện nhiều chủng loại như : vật dụng trang trí Phật điện, tôn tượng (thiên cái, tràng phan, anh lạc,…); Vật dụng cúng dàng (lư hương, chân đèn, nhang án,…); Nhạc khí (chuông, mõ, trống,…); Dung khí (rương đựng kinh, rương đựng cà sa,…); Vật dụng của chư Tăng (cà sa, tích trượng, tràng hạt,…).
Ví dụ: Chùa Thiếu Lâm ở Hà Nam, Trung Quốc và Chùa Pháp Long ở Ikaruga, Nhật Bản có các hạng mục công trình đăng đối theo trục dọc, trong đó điện thờ Phật giữ vị trí chủ đạo của quần thể.
1.3. Kiến trúc mỹ thuật Phật giáo Mật thừa
Kiến trúc mỹ thuật Phật giáo Mật thừa hình thành và phát triển cực thịnh từ thế kỷ VII đến thế kỷ VIII tại Ấn Độ. Kiến trúc mỹ thuật Mật thừa lan tỏa theo hai nhánh: 1. Trung Quốc truyền nhập vào Nhật Bản, hình thành dòng chủ lưu là kiến trúc mỹ thuật Phật giáo thời đại Heian (Bình An), Kamukura (Khiếm Thương); 2. Từ Nepal vào Tây Tạng, Bhutan, Mông Cổ và vùng Đông bắc Trung Quốc để hình thành và phát triển thành Tây Tạng Phật giáo mỹ thuật.
Kiến trúc mỹ thuật Mật thừa tuân thủ nghiêm mật những nghi quỹ phối trí trong Mạn-đà-la như: Lưỡng giới Mạn-đà-la, Tôn Thắng Mạn-đà-la, An Chấn Mạn-đà-la,… biểu hiện rõ nét qua hội họa. Kiến trúc mỹ thuật Mật thừa có sự đan xen với Ấn giáo, cụ thể là sự thêm vào các hình tượng Ấn giáo khi chế tác tượng thờ như: diện, tay, tam diện, thập nhất diện, tứ tý, bát tý, thiên thủ, râu tóc dựng ngược, vẻ mặt phẫn nộ, tức giận, tay cầm vũ khí… Các tôn tượng có quy định riêng cho ấn khế và trì vật. Điêu khắc Mật giáo với những mẫu thức mềm mại, uyển chuyển. Mật giáo còn có các pháp cụ đặc thù như Kim Cương chử, Kim Cương linh, giới đao, phủ việt, phả ba,…
Kiến trúc Phật giáo Mật thừa cũng là một quần thể kiến trúc với nhiều hạng mục công trình như kiến trúc Đại thừa, nhưng có màu sắc rực rỡ hơn, gồm hai dạng chính: 1. Loại xây ở bình địa, bố cục gần như đối xứng chỉnh thể, Phật điện ở trung tâm kiến trúc phải nổi bật nhất; 2. Loại xây ở chân núi, bố cục kiểu tự do, không có đường trục cho tổng thể và cũng không có quy hoạch trước đó.
Ví dụ: Quần thể chùa Swayambhunath ở Nepal, Tu viện Taktshang Gompa ở Bhutan được xây ở địa hình núi có bố cục kiểu tự do nhưng vẫn tuân thủ quy tắc Mạn-đà-la.
2. Kiến trúc Phật giáo Việt Nam
Nước ta, làng nào cũng có chùa, mỗi làng đều có một ngôi chùa, thậm chí có làng có đến hàng chục ngôi chùa. Chùa chiền, đình đền,… là một yếu tố cấu thành nên cộng đồng dân cư làng xã. Thậm chí ngày nay, khi xã hội đang đô thị hoá tới khắp hang cùng ngõ hẻm, làng-xã có chùa thì chung cư-phố phường cũng phải có chùa.
Nhìn theo lịch sử của dân tộc, thì kiến trúc của Phật giáo Việt Nam hiển nhiên đã có một chặng đường lịch sử khá dài-gần 2.000 năm. Phạm vi của hệ thống kiến trúc Phật giáo Việt Nam không chỉ giới hạn chung quanh những Tự viện Già lam mà còn cả nơi triều đình, công đường và bất cứ nơi nào mà mọi người có thể tập trung ít nhất từ hai người trở lên. Thậm chí còn lan toả vào tất cả mọi sinh hoạt nhân gian. Trải qua biến chuyển các thời kỳ lịch sử, sự khác biệt địa dư vùng miền,… Tất cả hệ thống kiến trúc ấy được tập thành Ngôi nhà Phật giáo Việt Nam. Do vậy, ngày nay, vấn đề lớn đó đã và đang là một đề tài luôn luôn mới mẻ trong hội thảo Kiến trúc Phật giáo Việt Nam thống nhất trong đa dạng của chúng ta ngày hôm nay.
2.1. Kiến trúc Phật giáo miền Bắc
Địa thế xây dựng chùa có ảnh hưởng không nhỏ theo địa lý phong thủy, chọn thế đất cho thích hợp với thiên nhiên, chọn khoảng đất bên trái nên rộng trống hoặc có sông ngòi, ao hồ, bên phải đất cao đầy. Trước mặt có minh đường hoặc hồ ao rộng, thủy đình. Nối rõ hơn là: – Phía trước có phong cảnh. – phía sau lưng(hậu chẩm) có núi-gò cao. – bên trái có dòng sông. – bên phải có thông lộ. Đó là 04 yếu tố, là “Long mạch” cho Kiến trúc và xây dựng một ngôi chùa.
Chùa là một quần thể kiến trúc bao gồm nhiều hạng mục công trình như: Tam quan, điện thờ Phật, tháp, hàng lang[4], dãy nhà Tổ[5], điện Thánh Tổ sư,… Trong đó, tháp là một bộ phận kiến trúc quan trọng, gồm các loại như: Phật tháp (xá lợi tháp), Pháp tháp (kinh tháp), Tăng tháp (Tổ sư tháp), Kỷ niệm tháp và phụng hiến tháp. Tháp được xây dựng ở một vị trí riêng biệt để tiện cho việc hành lễ. Tháp thường vươn theo chiều cao, không phát triển chiều ngang, rộng nơi chân bệ, chiều cao chia làm nhiều tầng theo số lẻ có những vành mái ngắn nhô ra để nhấn rõ từng tầng, đỉnh là một tán lọng hoặc búp sen.
Bố cục kiến trúc chùa có xu hướng trải rộng trên mặt đất theo một trục chính. Trong đó, khu trung tâm điện thờ Phật bao gồm 3 nếp nhà là Tiền đường[6], Thiêu hương[7], Thượng điện[8]. Mặt bằng phần lớn là “nội công ngoại quốc” (国), ngoài ra còn có các dạng mặt bằng: Chữ Đinh (丁), Chữ Công (工), Chữ Nhị (二), chữ Tam (三). Chủ yếu là thờ Phật, theo thức “tiền Phật hậu Thánh”, “tiền Phật hậu Tổ” tách biệt thành 2 khối công trình bằng một khoảng sân thiên tỉnh, tượng Phật và tượng Thánh cùng hướng.
Kết cấu chịu lực đa phần phần bằng gỗ liên kết mộng, kết hợp với vật liệu đá vân, đá ong, gạch nung, đá hộc,… Hình thức kết cấu gỗ “vì – kẻ – bảy”, trồng rường, giá chiêng hoặc cải biên tùy theo quy mô công trình. Tỷ lệ, hình khối kiến trúc chùa hài hòa với thiên nhiên và con người. Mặt đứng với phần tường không cao thường chiếm 1/3 chiều cao công trình, với cửa bức bàn kiểu thượng song hạ bản, dựa trên hàng cột to khỏe, hình dáng cột theo dạng đầu cán cân, chân quân cờ[9].Phần mái chùa thường xấp xỉ bằng 2/3 chiều cao toàn công trình. Mái một tầng theo kiến trúc vì-kẻ-bảy và phương pháp tàu đao lá mái với mái dốc phẳng, góc mái không xòe ra quá rộng và được tạo thành bởi sự giao nhau của hai tàu đao đan cài vào nhau, được uốn cong bởi sự déo cong tàu đao. Mái được lợp ngói mũi hài làm bằng đất nung, không men, dày nặng. Kiến trúc chùa sử dụng màu tự nhên của vật liệu, trang trí nội thất bằng điêu khắc chủ yếu.
Ví dụ: Chùa Bút Tháp[10](Bắc Ninh) nằm trên một khu đất rộng, bố cục quần thể kiến trúc chùa phát triển trên một trục chính xuyên tâm, từ tam quan đến gác chuông, qua 3 toà tiền đường, thiêu hương, thượng điện xếp đặt theo hình chữ công, rồi đến cầu đá, tích thiện am (toà cửu phẩm), nhà trung, phủ thờ và hậu đường. Hai bên tả hữu mạc tiếp giáp với nhà Tổ ở phía trong cùng, tạo thành kiểu “Nội công ngoại quốc”.
2.2. Kiến trúc Phật giáo miền Trung
Kiến trúc chùa vẫn giữ được một số sắc thái của miền Bắc trong địa thế và bố cục tổng thề. Chùa có thêm các thành phần như: Bình phong, lầu chuông, lầu trống. Bố cục tổng thể có các dạng: đối xứng qua trục giữa, các nhà phụ bố trí đăng đối hai bên. Cụm kiến trúc chính tổ hợp thường theo kiểu chữ nhất (一), chữ khẩu-chữ tỉnh (口).
Kiến trúc Phật giáo miền Trung có sự hòa quyện giữa kiến trúc nhà rường dân gian và kiến trúc hoàng gia. Xuất hiện hình thái kiến trúc mới là kiểu trùng thiềm điệp ốc[11]. Kiến trúc chùa thường là những ngôi nhà nhỏ, thấp có dạng mặt bằng vuông vức, lẻ gian (1-3-5 gian) và có 2 chái ở đầu hồi. Hệ khung kết cấu bằng gỗ với cột, kèo, xuyên, trính. Các bộ phận kết cấu được chạm trổ, trang trí. Mái dốc thẳng, góc mái không uốn cong, có khi được phân 2 lớp mái, mái được lợp ngói âm dương hoặc ngói liệt, sử dụng gạch để xây tường. Số lượng tượng thờ và cách bài trí rất phong phú, ngoài các tượng Phật, Bồ-tát Phật giáo thì còn có các tượng của tôn giáo, tín ngưỡng khác phản ánh sự thiên trọng về lễ nghi, cúng bái.
Ngoài chức năng sinh hoạt tâm linh, hành lễ thuần túy thì chùa miền Trung còn có các hoạt động như giáo dục Tăng tài, nghiên cứu kinh điển, hội họp, từ thiện; thờ vong linh người đã khuất,….
Ví dụ: Quần thể kiến trúc chùa Thiên Mụ (Huế) được xây dựng trên một ngọn đồi có bề mặt hình chữ nhật, phía trước là sông Hương. Chùa quay về hướng Nam, có bố cục trải theo chiều sâu khu đất, các thành phần kiến trúc đối xứng qua trục chính Bắc-Nam.
2.3. Kiến trúc Phật giáo miền Nam
Bên cạnh kiểu chùa truyền thống với kèo cột bằng gỗ kết hợp gạch, đá tiếp biến từ kiến trúc Phật giáo miền Bắc và miền Trung thì còn xuất hiện dạng chùa lầu với kiến trúc mới, kết cấu bê tông cốt thép, vật liệu hiện đại (kính, nhôm, compostie,…) vào khoảng giữa thế kỷ XX để thích ứng với việc thu hẹp khuôn viên chùa ở các khu đô thị đông dân. Hình thức kiến trúc chùa miền Nam có sự tích hợp giữa văn hóa tộc người Kinh, Hoa, Khmer, giữa yếu tố truyền thống và hiện đại, giữa phong cách Á và Âu (Đông và Tây). Thức thờ phổ biến là “tiền Phật hậu Tổ” trong cùng một khối công trình, nhưng tượng Phật và tượng Tổ ngược hướng nhau.
Các chùa ngoài những chức năng thờ tự, hành lễ, tu tập cho tín đồ, còn tổ chức thuyết giảng giáo lý, khám chữa bệnh, bốc thuốc, nuôi dạy trẻ mồ côi, người già neo đơn, làm trụ sở hoạt động của các tổ chức Phật hội…
Ví dụ: Việt Nam Quốc Tự (Tp. HCM) được xây mới hoàn toàn từ năm 2014-2017 theo kiến trúc chùa lầu gồm 4 tầng, mang phong cách hiện đại vừa kết hợp truyền thống chùa miền Bắc.
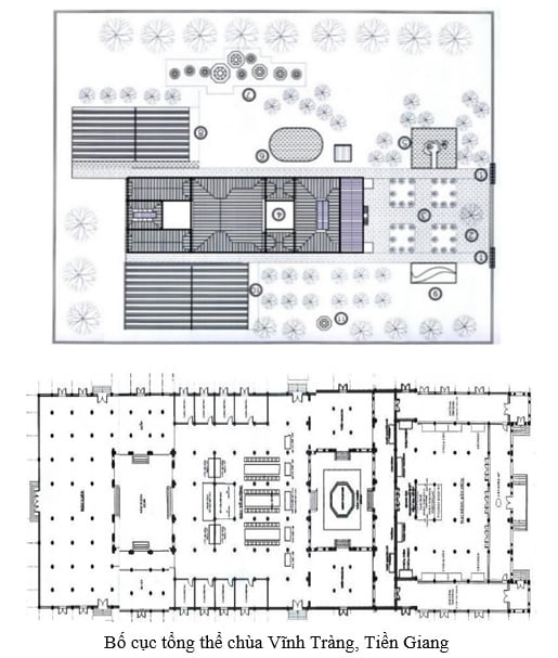
Chùa Vĩnh Tràng (Tiền Giang) tiêu biểu cho sự kết hợp giữa kiến trúc phương Đông và phương Tây, bên trong chùa vẫn giữ hệ khung gỗ truyền thống nhưng mặt tiền bên ngoài với các thức cột, vòm cung trang trí phương Tây.
3. Kết luận
Kiến trúc mỹ thuật Phật giáo trên thế giới và Việt Nam nước ta phát triển với các quy mô lớn nhỏ, công năng, loại hình kiến trúc đa dạng, phong phú nhưng bản chất vẫn là một thể thống nhất theo nguyên tắc cơ bản – như Thất đường Già Lam- nhằm phục vụ đời sống văn hóa con người cũng như nhu cầu tu tập giải thoát Giác ngộ.
Phật giáo nước ta, từ xưa đến nay, về cơ bản là tiếp thu tư tưởng Phật giáo Đại thừa, mẫu người lý tưởng là hành Bồ tát đạo. Với tư tưởng Trung đạo phi nhị nguyên, không cực đoan, Sa-bà uế trược là Tịnh độ Di Đà, sinh tử Niết-bàn là một. Tư tưởng Trung Đạo là tư tưởng không phân biệt, không lấy cái này bỏ cái kia. Theo kinh Diệu pháp Liên hoa đó là Nhất Phật thừa, là “Hội tam quy nhất” “Thuỷ nhị tam thừa chung tắc nhất”. Dẫu có phân hai-ba song cứu cánh vẫn là Phật thừa. Cũng chính tư tưởng đó mà năm 1981 tại thủ đô Hà Nội, Phật giáo Việt Nam thể hiện sức mạnh tiềm năng sẵn có trên vũ đài lịch sử: Thành lập Giáo hội Phật giáo Việt Nam, tiếng nói chung cho cả dân tộc trước một kỷ nguyên mới độc lập dân tộc và toàn vẹn lãnh thổ.
Tư tưởng Nhất Phật thừa trong triết học Phật giáo đã là viên đá tảng cho Kiến trúc Phật giáo nước ta tồn tại và phát triển. Đến nay Tự viện, Già Lam cả nước có 18.544 ngôi chùa, chư Tăng -Ni có trên 54.000 vị, 63/64 tỉnh thành có Ban trị sự Phật giáo, cư sỹ Phật tử trên 14 triệu người. Đứng về mặt số lượng, điều này chưa từng xảy ra trong lịch sử Phật giáo nước nhà. Sự kiện hy hữu ấy, phải chăng là thành tựu của sự thống nhất Ngôi nhà Phật giáo Việt Nam? Là tư tưởng Nhất Phật thừa xuyên suốt 2.000 năm lịch sử? Điều đó hẳn đã được trả lời.
Thượng tọa Thích Minh Hiền* Tham luận Hội thảo khoa học: Kiến trúc Phật giáo Việt Nam – thống nhất trong đa dạng, ngày 15/4/2023 tại hội trường Bảo tàng Lịch sử quốc gia (Hà Nội) ***
* Phó Trưởng ban Thường trực Ban Văn hóa Trung ương Giáo hội Phật giáo Việt Nam
Tài liệu tham khảo: 1. Nguyễn Bá Lăng, Kiến trúc Phật giáo Việt Nam, tập 1-2-3,Việt 2. Viện Bảo tồn di tích (1997), Kiến trúc chùa Việt, tập 1-2, Hà Nội 3. Adrian Snodgrass (1992), The Symbolism of the StupaDelhi 4. Thuần Công (2006), Đồ giải tự viện kiến trúc, Kyoto 5. Trung Thôn Nguyên – Cửu Dã Kiện (2002), Mỹ thuật Phật giáo sự điển, Kyoto 6. Robert Beer (2022), Bách khoa toàn thư-Biểu tượng và Hoa văn Tạng truyền, Việt dịch, Hà Nội 7. Ban Tôn giáo Chính phủ (2023), Sách trắng Tôn giáo và chính sách Tôn giáo ở Việt Nam, ngày 09/03.
Chú thích: [1] 塔婆 (tháp-bà), 浮屠 (phù đồ) có nghĩa là Bảo tháp, có dạng bán cầu dùng để tôn thờ, lưu giữ xá lợi của Đức Phật. Đây được xem là loại hình kiến trúc Phật giáo xuất hiện sớm nhất, khoảng thế kỷ 4-1 trước Công nguyên. [2] Còn gọi là Phật giáo cố sự, tức Phật truyện, Jakata (Bản sinh đàm) tức những điển tích về tiền thân, cuộc đời của Đức Phật, bao gồm cả yếu tố huyền sử và lịch sử. [3] Biến tướng từ nội dung các Kinh Đại thừa như Duy Ma Cật, Pháp Hoa, Hoa Nghiêm, A Di Đà,… [4] Thường hành lang nằm trong cùng là nơi đặt ban thờ và tượng các vị La Hán, lịch đại Tổ sư, hành lang hai bên làm nơi nghỉ cho khách thập phương. [5] Thường nằm ở vị trí kết thúc kiến trúc khu chùa, cũng là nơi sinh hoạt của trụ trì, nhưng cũng có khi khu này riêng biệt ở kế bên khu chùa. [6] Căn nhà ngoài, nơi các Phật tử dâng hương lễ cầu Phật. Hai bên có thờ các tượng Đức Ông, hai pho Hộ pháp. [7] Nơi đốt hương, dành cho Phật tử lễ bái. [8] Gọi là Tam Bảo của chùa, gồm nhiều tượng Phật đặt trên các bệ xây từ thấp tới cao, tượng trưng cho sự tu hành và đắc đạo của chư Phật đồng thời biểu hiện các triết lý của đạo Phật. [9] Đầu cột nhỏ, gần dưới phình to và chân cột thì thót lại theo tỷ lệ: 3-5-4. [10] Còn gọi là Ninh Phúc Tự. Chùa nằm ở phía Tây thôn Bút Tháp, xã Đình Tổ, huyện Thuận Thành, tỉnh Bắc Ninh, bờ Nam sông Đuống. [11] 重簷叠屋, là một kiểu kiến trúc nhà kép hai mái trên một nền. Nhà trước và nhà sau của điện được nối với nhau bằng một hệ thống trần vòm mai cua dưới máng nước nối của hai mái nhà.
